 |
|
 |
 |
| |
池袋の喧騒を離れて、劇場通りの並木道を歩くこと7分の距離にある12階建ての『ハイツオーエド』。コンビニ、酒屋も近く、なんと翌朝5:00まで営業しているスーパー「赤札堂」も徒歩1分圏内にあるので買い物も楽々!また、近くに高い建物がないので最上階からの眺めは絶景です!さらに、コインランドリーを併設しているので洗濯機を持たなくても問題ありません。この物件はほんとにおすすめです!!
|
|
|
|
|
|
|
 |
住 所
TOビル 物件(A) |
東京都豊島区池袋2-58-8 |
住 所
ハイツ オーエド
物件(B)
|
東京都豊島区池袋2-68-5 |
| アクセス |
山手線 池袋駅西口徒歩6分 |
| TEL |
※東豊企業株式会社 03-3982-1231 |
|
 |
 |
 |
 |
407号室
※ハイツ オーエド7号室 |
 |
広々としたダイニングキッチン407号室
|
 |
見晴らし抜群!!
|
 |
ガスが使えるキッチン
203号室 |
 |
かなり広いユニットバス
203号室 |
 |
 |
 |
 |
 |
 |
 |
 |
 |
 |
|
 |
 |
 |
 |
| Menu List |
TOビル (物件A)
【物件概要】
所在地/東京都豊島区池袋 2 丁目 58 − 8
構造規模/RC造 5 階建 4 、 5 階部分
築年月/ 1989 年
入居日/ 即日
設備/都市ガス・給湯・エレベーター
402 号室:シャワー・バストイレ同室
501 号室 : トイレのみ・ベランダ・フローリング・照明器具付
☆事務所可 ☆ 5 階建 5 階
【賃貸条件】
賃料例:401号室 75,000円
管理費:無 礼金: 2 ヶ月 敷金: 2 ヶ月 契約期間: 2 年 保険等加入: 15,000 円 /2 年 |
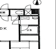
ハイツオーエド (物件B)1K・2DK
【物件概要】
所在地/東京都豊島区池袋 2 丁目 68-5
構造規模/SRC造 12 階建 2 、 4 、 6 階部分
築年月/平成元年
入居日/即
設備/給湯・シャワー・収納スペース ( 押入含 ) ・バルコニー、ベランダ・照明器具付・ガスコンロ設置可・エレベーター・駐輪場・ CATV ・都市ガス
事務所可 (応相談)
※夜間警備員常駐
【賃貸条件】
賃料例:502号室 78,000円+8,000円/607号室 140,000円/603号室 80,000円+8,000円
管理費:1K 8,000円/2DK 13,000円
礼金: 2 ヶ月 敷金: 2 ヶ月 保険等加入: 15,000 円 /2 年 |
|
 |
 |
 |
 |
| 連絡先 |
東豊株式会社 |
| 住所 |
東京都豊島区池袋2-68-5 |
| 電話番号 |
TEL 03-3982-1231 |
| 備考 |
※ハイツオーエドは警備員常駐 |
|
 |